
2025년은 후분양 아파트가 늘어나는 시기입니다. 청약 일정과 분양가, 입주 시기 등을 꼼꼼히 체크해보세요.
고척 힐스테이트 푸르지오는 서울 구로구 고척동 148-1번지 일대의 고척 4 구역 재개발 사업으로, 현대건설과 대우건설이 공동 시공하는 대단지 아파트입니다.
총 983세대 중 576세대가 일반분양으로 공급될 예정이며, 분양 시기는 2025년 5월로 예정되어 있습니다.
1. 사업개요 및 분양일정
고척 힐스테이트 푸르지오는 지하 3층부터 지상 25층까지 총 10개 동으로 구성되며, 건폐율은 21%, 용적률은 270%로 설계되었습니다.
시공은 현대건설과 대우건설이 공동으로 맡았으며, 시행사는 고척 4 구역 재개발조합입니다. 분양은 2025년 5월에 예정되어 있으며, 입주는 2026년으로 계획되어 있습니다.

2. 단지배치도
단지배치도에 따르면, 고척 힐스테이트 푸르지오는 총 10개 동으로 구성되어 있으며, 각 동은 지하 3층부터 지상 25층까지의 높이로 설계되었습니다.
단지 내에는 주민 편의를 위한 다양한 시설이 배치될 예정입니다.


3. 예상 분양가
청약 방식은 전용면적에 따라 가점제와 추첨제가 적용됩니다. 전용 85㎡ 이하는 가점제 100%로, 85㎡ 초과는 가점제 50%와 추첨제 50%로 진행됩니다. 추첨제 물량 중 75%는 무주택자에게 우선 배정됩니다.
주변에 비교할 단지로는 가깝게 고척 파크푸르지오가 있으며, 최근에 33평 기준 10억대에 거래되고 있습니다.

현재 평당가 4000만원 정도 예상하며, 이를 계산하면 25평 약 10억대, 33평은 13억대의 분양가 예상됩니다.
목동 학원가 주변으로 대부분 구축이므로 실거주하는 데 있어서 불편한 점은 있습니다.
하지만, 상대적으로 저렴한 가격으로 신축 브랜드 아파트에 거주하면서 목동 학원가를 이용하려는 분들에게는 충분히 대체지가 될 수 있다고 생각됩니다.
다만, 공사비 상승 등의 요인으로 실제 분양가는 변동될 수 있으므로, 정확한 분양가는 추후 공식 발표를 통해 확인해야 합니다.
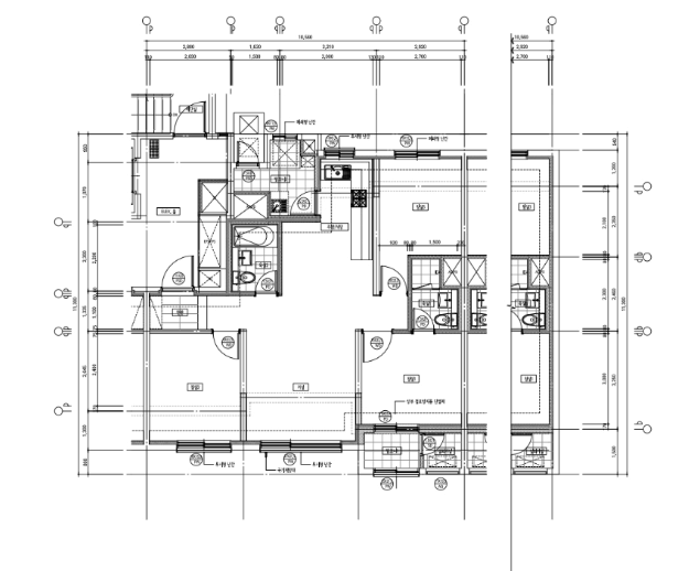
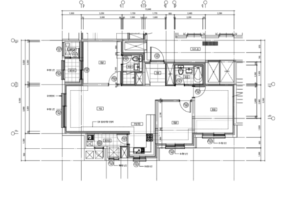
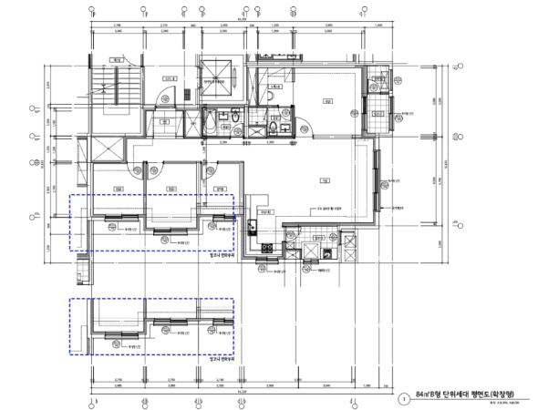
4. 평면도
고척 힐스테이트 푸르지오는 전용면적 59㎡와 84㎡의 두 가지 타입으로 구성되어 있습니다.
59㎡ 타입은 A형과 B형으로 나뉘며, 각 각 369세대와 81세대가 공급됩니다.


84㎡ 타입은 A형과 B형으로 구성되며, 각각 112세대와 14세대가 공급될 예정입니다.


5. 자금마련계획
분양가가 9억 원을 초과할 경우 중도금 대출이 불가하므로, 자금 계획을 철저히 세워야 합니다.
또한, 전매 제한 기간과 중도금 대출 규제 등 청약 관련 유의사항을 사전에 숙지하여야 합니다.
청약을 앞두고 있다면 입지, 분양가, 자금조달 전략까지 꼼꼼히 점검하시고 신중하게 결정하시길 바랍니다.